IMS Rio de Janeiro
IMS São Paulo
Memorial
Nesta mostra do albanês Anri Sala, realizada no Instituto Moreira Salles no Rio de Janeiro e em São Paulo, o projeto foi desenvolvido em colaboração com o próprio artista, para quem “uma exposição não serve apenas para mostrar obras editadas na origem, mas também para mostrá-las no lugar onde pertencem: o aqui e agora; a visita, que é o destino final.”
Na montagem do IMS carioca, o desafio foi potencializar a experiência do público com o espaço criando soluções que respeitassem ao mesmo tempo as necessidades de controle acústico e luminoso das obras com vídeo e som e as características abertas e transparentes da casa da Gávea. Um novo percurso foi sugerido pelos ambientes, passando pelo exterior e ocupando espaços até então ociosos da casa, como a varanda com painéis cobogó. Onde houve a necessidade de bloquear som e luz, foram instalados painéis delgados, soltos dos planos envidraçados, preservando ao máximo as relações fluidas entre interior e exterior próprios da arquitetura moderna da casa. Para a absorção acústica nas salas, foi desenvolvido um painel com materiais nacionais, como alternativa às custosas espumas importadas que teriam onerado demasiadamente a montagem.
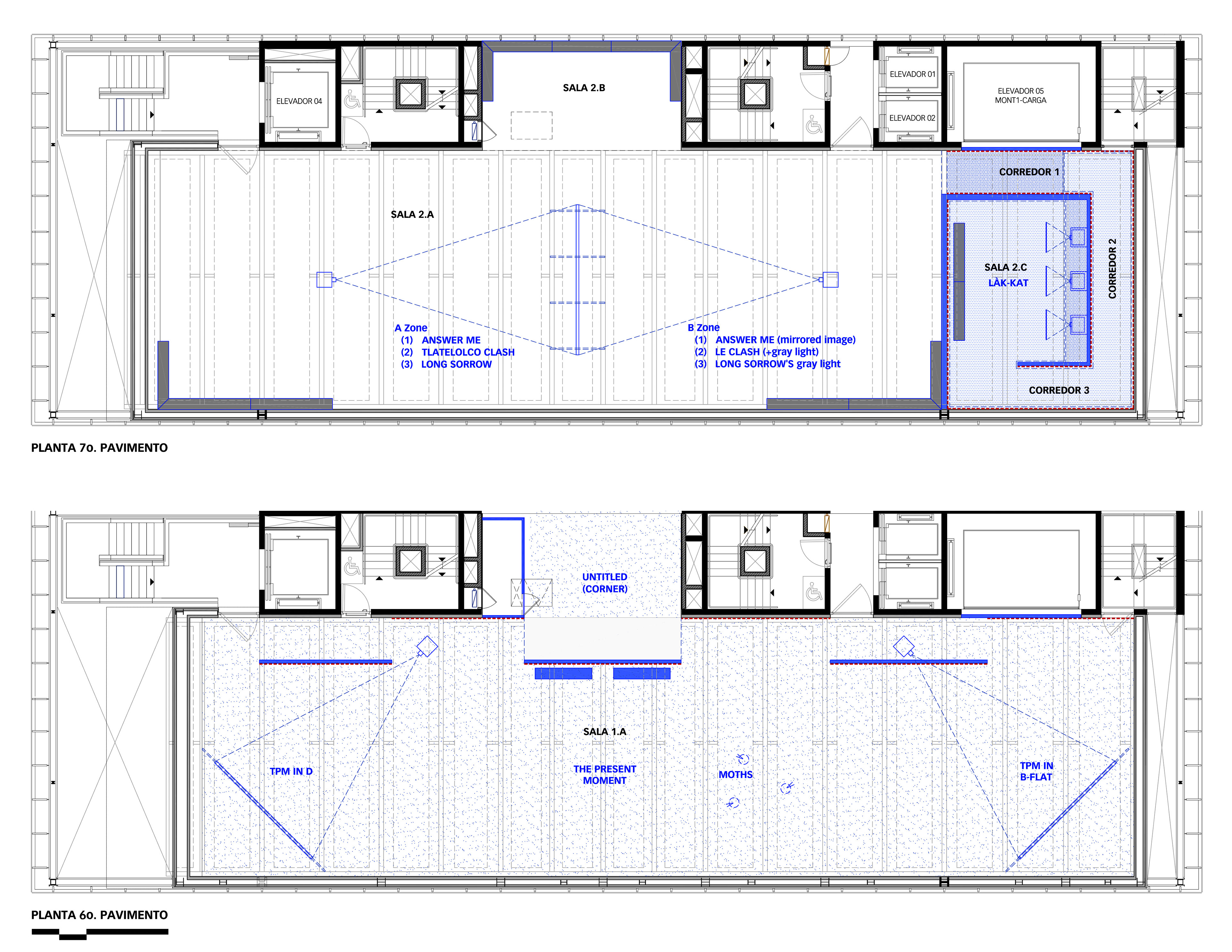
O projeto para a montagem do IMS em São Paulo foi concebido durante a obra de construção do novo edifício na Avenida Paulista. Algumas das mesmas obras, reinstaladas numa das galerias de características mais tradicionalmente associadas à exposições de arte, com espaços de contornos retangulares e sem aberturas visuais para o exterior, resultaram numa experiência de fruição bastante distinta da primeira montagem. A obra que intitula a mostra, "The Present Moment", ocupou uma das outras galerias com uma instalação audiovisual meticulosamente adaptada pelo artista para esse espaço.
Ficha Técnica
Local
Instituto Moreira Salles, Rio de Janeiro e São Paulo
Instituto Moreira Salles, Rio de Janeiro e São Paulo
Data
2016 (RJ), 2017-18 (SP)
2016 (RJ), 2017-18 (SP)
Expografia
Ana Paula Pontes
Ana Paula Pontes
Curadoria
Heloísa Espada
Giovanna Bragaglia e Tiê Higashi (assistência)
Heloísa Espada
Giovanna Bragaglia e Tiê Higashi (assistência)
Projeto gráfico e sinalização
Bloco Gráfico
Bloco Gráfico
Fotografias
Vicente Mello e Paulo Jabour (RJ)
Renato Parada (SP)
Vicente Mello e Paulo Jabour (RJ)
Renato Parada (SP)